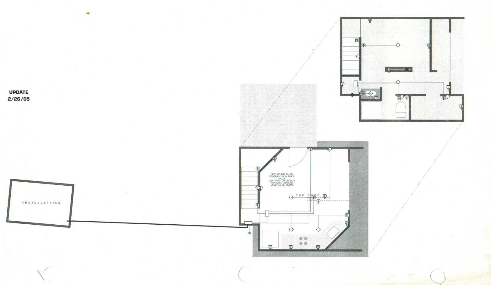
Wiring diagram showing planned location of switches, plugs, fixtures and junction boxes

Field notes on how to wire the circuit breaker panel

Thinking on paper about details of wiring the lower floor

Wiring the kitchen plugs

Insulation is tucked in behind the wiring

Plenty of outlets for ceiling fans. Wiring running in Cantex counduit can be seen attached to the ceiling beams

Bus bars in the shed taking DC feed from panels

Bus bars connect to the charge controller

Junction box for an Unisolar panel

Rick inspects panels during re-wiring them for 24 volt

Nasty corrosion on the original lead-acid battery bank. Sea air and blown sand are fouling the cables

The Schneider 2,500 W inverter installed in October 2014 replacing the failed Xantrex inverter which was installed in 2008

<

>

12 - 12

RETURN TO ELECTRICITY